اخبار

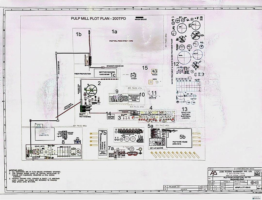
نقشه سایت پلن کارخانه تولید خمیر کاغذ و کاغذ
 

نقشه سایت پلن کارخانه تولید خمیر کاغذ و کاغذ

دوشنبه، 20 فروردین 1403 | Article Rating
دریافت نقشه سایت پلن کارخانه تولید خمیر کاغذ و کاغذ و اخذ تائید جهت احداث
تصاویر
  • نقشه سایت پلن کارخانه تولید خمیر کاغذ و کاغذ
ثبت امتیاز
نظر جدید

Website

تصویر امنیتی
کد امنیتی را وارد نمایید: